Tamaño Laboratorio Creativo

en La Rioja , LA RIOJA
Reforma sede social y taller-escuela para jóvenes y/o colectivos desfavorecidos de Logroño y su área circundante. Obtener licencia de actividad (normativa urbanística del Ayto. de Logroño) .

¡¡ Campaña finalizada !!

0 €
0 %
mínimo
55.878 €
óptimo
61.530 €

Objetivo mínimo no alcanzado.

TODO VALE

Gracias por el apoyo recibido

3 de abril de 2018

CAMPAÑA DE CROWDFUNDING

Tamaño. Laboratorio Creativo. (Espacio Cultural y Social)

Reforma de local (Logroño)

Promotor: COMPLOT! Asociación Artística Contemporánea.

Toda la campaña está configurada para obtener, de la forma más barata posible, la licencia de Actividad por parte del Ayuntamiento de Logroño.

Como se observa en el diseño y presupuesto, la reforma que planteamos es la más simple posible dentro de la multifuncionalidad del espacio.

Todas las partidas se han diseñado cuidadosamente para cumplir estos requerimientos.

El presupuesto completo y la memoria están a vuestra disposición más adelante.

 

¿Qué es Complot?

Somos una asociación sin ánimo de lucro que trabaja para que jóvenes en peligro de exclusión social encuentren su vocación laboral a través de la creatividad, mediante proyectos en los que se involucran profesionales de distintas áreas creativas y artísticas.

Complot! Es una asociación que busca hacerse un hueco en la dinamización cultural, creando nuevas alternativas de ocio para todas las edades, acercando el arte de forma divertida y original. Por nuestra experiencia anterior le damos mucha importancia a la educación y por eso trabajamos por el cambio con dinámicas y procedimientos diferentes, más creativos, usando el arte como herramienta de transformación.

En Complot! valoramos y sumamos diferentes formas de trabajar, de pensar, de disfrutar… e intentamos que los proyectos sean, en la medida de lo posible, auto sostenibles, respetuosos con el entorno y con un alto grado de inclusión social y de compromiso con los colectivos más desfavorecidos. El equipo está formado por artistas, diseñadores, profesionales de la educación y de la gestión cultural.

En casi tres años de trayectoria hemos desarrollado numerosos proyectos y colaborado en otros muchos, pero necesitamos una sede permanente, un local donde poder responder satisfactoriamente a la gran demanda de actividades que se está generando últimamente: Tamaño, Laboratorio Creativo

Proyecto concreto, descripción

Actualmente disponemos de un local de 400 m2 donde ya hemos realizado alguna actividad, pero para obtener una licencia de actividad de acuerdo a la normativa urbanística del Ayuntamiento de Logroño y con los requerimientos de los distintos colectivos y grupos con las que estamos colaborando, necesitamos realizar una reforma que cumpla con todos estos requisitos.

Queremos rehabilitar y dotar este local para convertirlo en sede social y taller-escuela para jóvenes y/o colectivos desfavorecidos de Logroño y su área circundante.

Contará con una gran “plaza” dotada para actos o eventos públicos, una galería de arte contemporáneo, un taller de cocina, aulas para talleres, un huerto urbano con invernadero al aire libre y espacios para co-workers y otros colectivos que puedan ayudar económicamente al mantenimiento del local.

Pretendemos que sea un lugar abierto donde profesionales, artistas y creativos puedan compartir su trabajo y experiencia mediante eventos, talleres, cursos y convivencias con diferentes personas, colectivos o familias que no pueden permitirse acceder a este tipo de actividades.

Por eso queremos crear un espacio permanente del que puedan disponer para sus actividades públicas o privadas.

Tamaño será también la oficina de producción de diversos proyectos “externos” con vocación de dinamizar cultural, social y económicamente a la propia ciudad. Un espacio de Creación/Exhibición y Encuentro cultural, donde aparte de trabajar podrás gestionar tus propios eventos y exhibiciones.  Una ventana a diferentes propuestas. 

Nuestros proyectos incluirán de forma activa y remunerada a los jóvenes que participen, de manera que se convertirán también en los primeros pasos en su vida laboral. De hecho, la propia reforma del local se convertirá en un taller de construcción y participarán de forma activa en esta campaña para adquirir experiencia.

Así mismo, los propios alumnos irán adquiriendo experiencia para convertirse a su vez en colaboladores o educadores de los que vayan incorporándose año tras año, objetivo que ya se está cumpliendo actualmente.

Básicamente, lo que pretendemos es crear una gestora cultural sin ánimo de lucro, una empresa social que sea capaz de generar entre 15 y 20 puestos de trabajo al año.

Para la financiación de nuestros proyectos crearemos distintas plataformas de crowdfunding o micromecenazgo, así como un sistema cooperativo para eventos más ambiciosos económicamente; principalmente convocatorias, talleres y cursos de Música, Artes Plásticas e Imagen y otras disciplinas escénicas como Danza, Teatro, Títeres…

Para ello programaremos ciclos trimestrales en los que se irán alternando estas disciplinas para ofrecer la mayor variedad de posibles experiencias a los alumnos, que convivirán estrechamente con los artistas y técnicos involucrados.

En cada proyecto, los grupos o artistas participantes optarán a unos mínimos para cubrir gastos de desplazamiento, hospitalidad etc. Así como a un reparto proporcional de los beneficios que generen los eventos en los que hayan participado.

Además crearemos “becas” especiales cuyo número dependerá de las distintas características de cada convocatoria para incentivar la inclusión de jóvenes en actividades que no pueden permitirse económicamente.

También aceptaremos patrocinadores públicos o privados que simpaticen con nuestras convocatorias y actividades o intercambios de cualquier tipo que faciliten la generación de los mismos.

La asociación sólo dispondrá de las cantidades necesarias para subsistir tanto ella misma como sus trabajadores/alumnos a tiempo completo o parcial, invirtiendo cualquier cantidad sobrante o beneficio extra en crear nuevas convocatorias y centros de creación o reforzar la visibilidad y alcance de las ya existentes.

Nuestras cuentas estarán a disposición de cualquiera que las solicite como garantía de transparencia y como información para posibles colaboraciones.

 ¿Por qué queremos llevar a cabo el proyecto?

Queremos llevar a cabo este proyecto porque sin una sede física e independiente no sería posible realizar la inmensa mayoría de éstas actividades.

Conseguir este objetivo significaría poder garantizar una continuidad para todos nuestros proyectos y una salida laboral para numerosos profesionales y jóvenes de la ciudad.

Constituiría, además, un vehículo de intercambio con otros espacios y lugares en el ámbito nacional e internacional. Redes ya creadas y que están esperando que en nuestra comunidad exista una iniciativa como ésta para poder colaborar.

Para nosotros, conseguir una sede de estas características supone no sólo cumplir con nuestra vocación, sino poder compartir este espacio con otras muchas personas y colectivos que no pueden disponer de unas instalaciones donde generar sus propias iniciativas.

¿Cómo va a influir el proyecto?

Al estar situado en un área urbana de bajo nivel adquisitivo y de gran densidad de población procedente de diferentes nacionalidades, Tamaño será un ejemplo de intervención comunitaria, abierto a la cohesión social e intercambio entre diferentes culturas.

Hoy en día no existe otro espacio independiente de estas características en La Rioja.
Pretendemos ser tan sólo los primeros de una larga lista de proyectos similares impulsados desde nuestra sede o compartiendo nuestra experiencia con los demás.

Buscar una solución de continuidad, un complemento práctico al trabajo que ya realizan las asociaciones con las que estamos colaborando.

Queremos generar un espacio didáctico y orientado a la integración laboral a través de la convivencia con el arte y la creatividad.
No se trata exclusivamente de pretender convertir en artistas a estos jóvenes, tal vez encuentren su vocación en sectores relacionados con el arte: Sonido, iluminación, imagen, diseño gráfico, ilustración, escenografía, producción, catering, estilismo, arte visual y multimedia, diseño de moda, de producto… y un largo etcétera de profesiones cercanas a distintas disciplinas artísticas.
De ahí la importancia de involucrarlos laboralmente desde la gestación de cada proyecto, según sus inquietudes, curiosidad o disposición.

Capital humano, promotores y colaboradores

A día de hoy estamos colaborando con instituciones como la Consejería de Políticas Sociales, Familia, Igualdad y Justicia del Gobierno de La Rioja, IRJ (Riojano de la Juventud), Fundación Pioneros, Cruz Roja, Fundación Diagrama (Centro de Menores de Virgen de Valvanera y Residencia Iregua), A.P.I.R, (Asociación Pro Infancia Riojana), con la Coordinadora de ONG’s de La Rioja, con la Escuela Superior de Diseño de la Rioja (ESDIR) Diversas Asociaciones de padres y Madres de Alumnos, Colegios, Ayuntamientos...

Además trabajamos con otros profesionales del ámbito creativo (La Casa de la Imagen, Amadeus Aula Creativa, Con Otra Mirada, Callejeatro, Barricarte, Madrugada Producciones...) colectivos y asociaciones vinculados a la creatividad (Ariel, El Hombre que fue Jueves, Cancióndeautor.es, Nota Alterna...) artistas plásticos, músicos, cómicos, creativos, festivales y encuentros y espacios de arte... al final de éste documento se dispone de una lista completa con nuestras colaboraciones, proyectos y colaboradores en éstos casi tres años de trabajo.

De momento no contamos con ninguna forma de financiación para este proyecto, aunque el Gobierno de La Rioja desde el IRJ ha colaborado con nosotros en dos proyectos de caracter anual: Así es mi Vida y El Gran Circo de las Ilusiones. La información de ambos está disponible en nuestras redes sociales.

El proyecto se pondrá en marcha tan pronto como consigamos las primeras ayudas.


¿Quiénes se benefician con el proyecto?

Los beneficiarios directos son los ñiños y las niñas, adolescentes y jóvenes con los que ya estamos trabajando en diversos proyectos, así como personas de diferntes edades y ámbitos que han participado en otras dinámicas, actividades, encuentros, eventos...de manera activa o como público y que se han contagiado de nuestra filosofía creativa y artística.

Por eso queremos crear esta gestora que pueda dinamizar cultural, social y (en la medida de lo posible) económicamente nuestra ciudad.

Tamaño albergará proyectos, cursos y talleres creativos relacionados con todas las artes, que podrán encontrarse (entre otros) en nuestras redes sociales. Aquí os dejamos algunas de nuestras ideas, algunas ya realizadas y otras en proceso:

  • Congreso Nacional de Canción y Vino de Autor,
  • Festival Internacional de Narrativa y Poesía (Poética)(FIP) (Poetas en Galerías)
  • Ciclos de Cuentos, Títeres y Música Tradicional (Glob & Folk)
  • Ciclos de Jazz y Música Clásica para alumnos de Conservatorio o jóvenes talentos (Jazz In Case), (Klásik)
  • Flamenco Joven (Flamen&Co)
  • Talleres y Muestra de Danza Contemporánea (Danzaz),
  • Ciclos de Música Urbana y Arte Visual (Hip-Hope),
  • De Canto Coral (Vox-Pópuli),
  • De Música de Calle (Charanfanfar),
  • Un Festival de Cine y Vino (CineVid),
  • Un Festival de Culturas Sostenibles,
  • Un Congreso de Arquitectura y Construcción Bioclimática,
  • Residencias de Artistas, Cursos y Talleres de Cocina, Arte, Poesía, Reciclado, de Horticultura, Caligrafía, Ilustración, Moda, Cine, de Recuperación de Oficios Perdidos... Además de Mercadillos Solidarios, Muestras de Arte, Clases Magistrales, Intercambio de Idiomas...

Tamaño será una gran (y quizás única) oportunidad de que muchos jóvenes encuentren una motivación en su tiempo libre o como alternativa profesional.

Pero además queremos que cualquiera que tenga ganas de aprender y fomentar o compartir su creatividad, pueda exponernos su proyecto y nosotros, desde Tamaño, le ayudaremos a realizarlo buscando financiación, aportando la parte didáctica o simplemente, compartiendo nuestro espacio.

Tenemos un gran banco de jóvenes talentos en La Rioja que necesitan un lugar donde mostrarlo y desarrollarlo.

Financiación y contribuciones

Tipo de financiación: Todo vale.

La campaña se considerará un éxito siempre, puesto que todas las aportaciones serán entregadas al promotor, independientemente de lo que se recaude y cual sea el objetivo mínimo.

Las obras comenzarán en cuanto recibamos las primeras aportaciones.

Datos objetivos de financiación:

El dinero recaudado se utilizará única y exclusivamente en la rehabilitación de este local según el proyecto y presupuesto que se adjuntan.

Se aceptan también materiales de construcción, mobiliario, iluminación… siempre que se adecúen al proyecto.

Si se recaudara más dinero del que se presupuesta irá destinado a la dotación de equipos y materiales didácticos.

Recompensas

Las recompensas, en su mayoría,  estarán vinculadas al propio local, es decir a la utilización del mismo por parte de todos los que colaboren. Los precios de colaboración se establecen como “abonos de socio” o suscripciones anuales para poder asistir a las actividades y eventos programados o convocar las propias para generar negocio.

Mientras dura la campaña estos precios serán menores que tras su finalización.

Todos los eventos programados incluirán una comida popular o catering como siempre hemos venido realizando hasta la fecha. Serán realizadas por los integrantes de los talleres de cocina. 

A los talleres podrán también asistir niños, menores, u otras personas en nombre de los colaboradores.A no ser por petición expresa, figurarán los nombres de todos aquellos que hayan colaborado tanto en la sede (rotulados en tamaños acorde a las aportaciones), como en nuestras redes sociales. 

En todo momento estarán disponibles en nuestras redes sociales tanto la información económica (ingresos, pagos a gremios…) como el estado de las obras en tiempo real.

A partir de 250€: Utilización del espacio para  profesionales, colectivos, instituciones o empresas: presentaciones, reuniones, sala de exposiciones, showrooms, plató de rodaje, caterings, catas,eventos privados…  

Se trata de una oportunidad única, durante la campaña de Crowdfunding, en la cual podrás disponer de un espacio exclusivo para el evento que tu desees a un precio exclusivo que luego aumentará.

Si piensas que siempre ha faltado un espacio multifuncional que de respuesta a tus necesidades como organización o particular, Tamaño quiere ser la respuesta, el lugar donde poder dar a conocer y desarrollar proyectos. 

 

Aportaciones seguras

Todas las aportaciones se realizan a traves del TPV de Triodos Bank, banca ética, una vez finalizada la campaña.

 

Durante la campaña se realizan compromisos de aportaciones, es decir, se registran los datos del aportante pero no se recoge el dinero.

Al día siguiente de la finalización de la campaña se ejecutan todos los compromisos de aportación realizados, es decir, se coge el dinero.

Necesidades del proyecto

Toda la campaña está configurada para obtener, de la forma más barata posible, la licencia de Actividad por parte del Ayuntamiento de Logroño.

Como se observa en el diseño y presupuesto, la reforma que planteamos es la más simple posible dentro de la multifuncionalidad del espacio. 

Todas las partidas se han diseñado cuidadosamente para cumplir estos requerimientos.

El presupuesto completo y la memoria están a vuestra disposición en nuestro blog y web.

 

 

Estado actual:

Aunque ya hemos realizado alguna actividad el local dispone sólo de un permiso de obra de 1974 y unos servicios muy básicos, razón por la que se necesita actualizar toda la instalación. Parte importante del proyecto es demoler las partes que actualmente se consideran "ilegales".

 

 

 

Vistas del nuevo local:

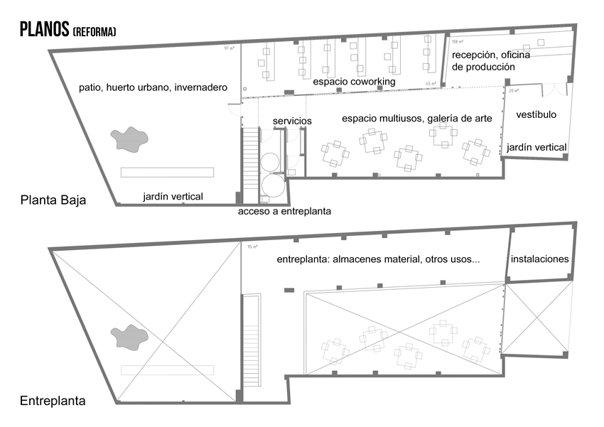
Espacio Coworking

Este espacio está pensado para la convivencia de al menos 5 profesionales o micro-empresas. Dispondrá de todo lo necesario para poder trabajar cómodamente: internet, instalación eléctrica, climatización, etc. Será un espacio cerrado al público y de uso exclusivo para co-workers. Estamos estudiando la posibilidad de incorporar servicio de guardería infantil.

Zona Multiusos

La sala multiusos será el espacio principal de Tamaño. En ella convivirán, con una galería de arte contemporáneo, la mayoría de actividades que se realizarán trimestralmente. Estará equipada con sonido, proyector, iluminación escénica, material para presentaciones, catering, etc. Todo el equipo será móvil para lograr un uso óptimo.

Vista desde el Patio

Vista desde la Entreplanta

 Acceso a Entreplanta y Patio

En el patio se ubicarán un invernadero/huerto urbano, un jardín vertical y un aula/taller iluminada con luz natural. Cuando el tiempo lo permita se realizarán actividades al aire libre

 

Vestíbulo, recepción, oficina de producción.

El vestíbulo será una prolongación de la sala multiusos abierta a la calle como invitación permanente a entrar y participar. Podrá abrirse físicamente para permitir acceso a vehículos cuando sea necesario. En la recepción se ubicará también nuestra oficina de producción y la gestora cultural.

 

GRACIAS!

 

 

 

 


Ayúdanos a difundir el proyecto compartiéndolo en tus redes sociales

¡¡Gracias!!

Aún no tenemos aportantes en el Proyecto.

Empieza apoyando el Proyecto con una aportación

Por ahora no hay ninguna novedad publicada.